お問い合わせはこちら
0475-36-2336
アパート
| 賃料 |
5.9万円 | 交通 | 外房線 「茂原」駅 徒歩6分 |
|---|---|---|---|
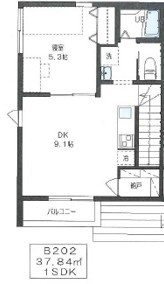
| 間取り | 1DK+S(納戸) | 所在地 | 千葉県茂原市町保 10-107 |
| 専有面積 | 37.84㎡ | 築年月(築年数) | 2016年 3月 (築9年) |
「利回り」は、当該不動産の1年間の予定賃料収入の不動産取得対価に対する割合であり、公租公課その他当該物件を維持するために必要な費用の控除前のものです。
また、予定賃料収入が確実に得られる事を保証するものではありません。

※地図上の物件位置は近隣に物件が所在することを表すものであり、実際の物件所在地とは異なる場合がございます。
0475-36-2336
営業時間:9:00~18:00 / 定休日:祝日、GW、夏季、年末年始
| 所在地 | 千葉県茂原市町保 10-107 | ||
|---|---|---|---|
| 交通 | 外房線 「茂原」駅 徒歩6分 | ||
| 賃料 | 5.9万円 | 管理費 | 3,000円 |
| 敷金/保証金/礼金 | 1ヶ月 / - / 0ヶ月 | 敷引/償却 | - / - |
| 敷金積み増し | |||
| 更新料 | 1ヶ月 | 更新事務手数料 | |
| 権利金 | 雑費 | ||
| 所在階/階数 | 2階 / 2階建 | 専有面積 | 37.84㎡ |
| 間取り |
1DK+S(納戸)
洋室 5.3帖 1室 / |
||
| 主要採光面 | 南 | 建物構造 | 木造 |
| 築年月(築年数) | 2016年 3月(築9年) | 契約期間 | 2年 |
| 総戸数 | 4戸 | ||
| 入居可能日 | 相談 | 現況 | 空家 |
| 取引態様 | 専任媒介 | 特優賃 | |
| 保険 | 保険加入義務:有、保険名:火災保険、保険料:15000円、保険期間:2年 | ||
| 保証会社 | |||
| 駐車場 | 近隣、物件からの距離:10m、形式:自走式、月額料金:4,000円(税込) | ||
| 設備条件 | 公共下水 / 公営水道 / 閑静な住宅地 / 都市ガス / 陽当り良好 / デザイナーズ / バリアフリー / フローリング / 24時間換気システム / 電気有 / 照明器具付き / 駐輪場 / IHクッキングヒーター / コンロ1口 / バス・トイレ別 / 追焚機能浴室 / 温水洗浄便座 / シャワー / 独立洗面台 / エアコン / ウォークインクロゼット / インターネット対応 / ネット使用料無料 / オートロック / TVモニタ付インターホン | ||
| その他条件 | 退去時クリーニング:3万円(月額) | ||
| 備考 | 2/1~3/31お申し込みの方限定 入居月フリーレントキャンペーン実施中! | ||
| 物件番号 | 44994422 | ||
| 情報公開日 | 2026年1月22日 | 次回更新予定日 | 2026年2月3日 |
| 取引条件の有効期限 | 2026年2月3日 | ||
| 取扱い会社 |
(株)小沢工務店 〒297-0026 千葉県茂原市茂原1047-9 千葉県知事(3)第16272号 (一社)千葉県宅地建物取引業協会 |
||
0475-36-2336
営業時間:9:00~18:00 / 定休日:祝日、GW、夏季、年末年始
| 所在地 | 物件の住所を表示。(詳細住所は表示していない場合もある) | ||
|---|---|---|---|
| 交通 | 物件(部屋)の沿線駅・バス停を表示。(複数駅・バス停の利用が可能な場合は最大3件まで) | ||
| 間取り/詳細 | 数字は居室数を表示。LDKはそれぞれ「リビング」「ダイニング」「キッチン」、S(納戸)とは「納戸」「サービスルーム」「マルチルーム」「フリールーム」など建築基準法第28条に適合していないため、居室と認められない納戸その他の部分を表す。 | ||
| 価格 | 販売されている住戸の価格を表示。仲介手数料は含まない。 | ||
| 管理費 | 共同住宅の設備その他共用部分の維持および管理をするために必要な費用を表示。 | ||
| 修繕積立金 | 共用部分の修繕のために積立てる金額を表示。 | ||

【外観】